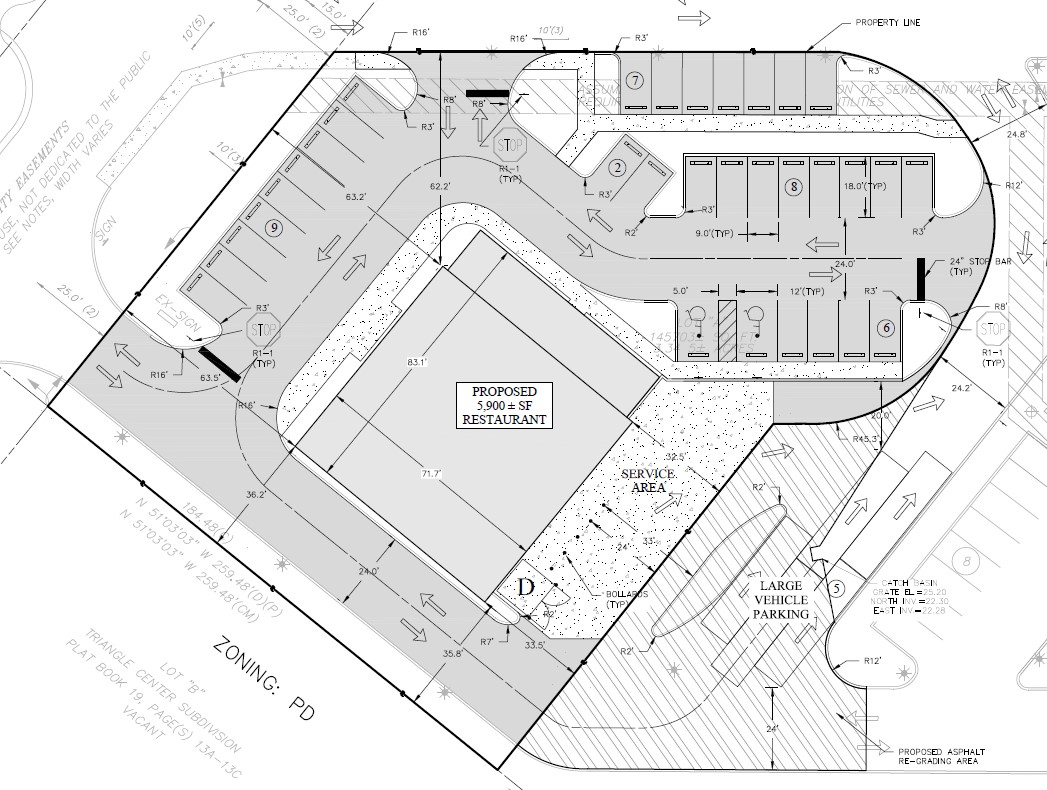
Port Charlotte Restaurant
| Type | New Restaurant & Bar |
|---|---|
| Dates | TBD |
| Building | 1-Story 5,900 sqft 212-Seat |
| Location | Port Charlotte, Florida |
Charlotte County is situated on and around pristine Charlotte Harbor, Florida's second-largest estuarine system, the communities of Charlotte County reflect the unique ambiance of the area. People have discovered Charlotte County's unspoiled beauty and its livability, making it a destination of choice for both full-time residents and vacationers. Port Charlotte is found along Florida's welcoming Gulf Coast, located about halfway between Sarasota and Fort Myers. It has more than 165 miles of waterways, providing access to Charlotte Harbor and the Gulf of Mexico and many more miles of natural shoreline bordering Charlotte Harbor and the Peace and Myakka rivers. Seven of the 21 golf courses located in Charlotte County are found in Port Charlotte. Charlotte Sports Park is home to spring training for the Tampa Bay Rays.
Located conveniently off I-75, the Port Charlotte Restaurant is in a prime location. Exit 170 is Kings Highway, where you will find six (6) Hotels within a 2-Mile radius, with very few options for dining, drinking, or entertainment. The high-traffic area is a prime location that would attract locals, Hotel guests, and travelers alike.